Close
Back to Listings Back to Listings

4 Bedrooms House / Villa in Carrer de Sant Josep

  • 5,486,208
  • 4 beds
  • 3,929 sq ft
  • Ref: ESP-EC48025A8D
4 Bedroom house / villa for sale in Pollensa, Balearic Islands
This elegant town house is located in the heart of the historic old town of Pollensa, set on a quiet side street that offers privacy and charm while being just steps away from the town’s vibrant centre. Fully renovated in 2023, the property presents a refined blend of modern design and traditional Mallorcan character, with high-quality finishes and tasteful furnishings included in the price, allowing for immediate move-in.

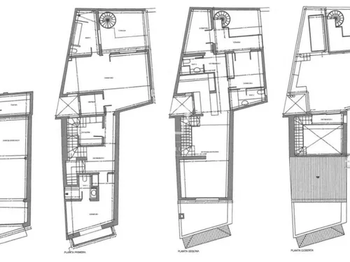
The house offers a total built area of 365 m² with approximately 223 m² of living space, thoughtfully distributed to maximise comfort and functionality. The first floor features two spacious bedroom suites, each with its own bathroom and access to a terrace, creating private and tranquil retreats. On the second floor, the bright living and dining area opens onto an adjoining terrace and is complemented by a fully equipped kitchen, ideal for both everyday living and entertaining. This level also includes two additional bedroom suites, providing ample space for family and guests.

One of the highlights of the property is the impressive rooftop terrace with a heated swimming pool. From here, panoramic views extend across the rooftops of Pollensa’s old town and towards the Puig de Maria, offering a peaceful setting to relax and enjoy the Mediterranean lifestyle. Additional features include air conditioning, underfloor heating powered by a heat pump, a fireplace in the living area, an alarm system and internet connection. A particularly valuable asset in the old town is the private garage, providing secure parking for one vehicle as well as space for bicycles and storage, complemented by a guest toilet.

This property represents a rare opportunity to acquire a high-quality, fully furnished town house in one of Mallorca’s most charming historic locations.
Facilities & Amenities
  • Terrace Terrace
  • Swimming Pool Swimming Pool
  • Natural light Natural light
  • High ceilings High ceilings
  • Parking Parking
  • Views Views
  • Panoramic view Panoramic view
  • Heating Heating
  • Fireplace Fireplace
  • Exterior Exterior
  • Equipped Kitchen Equipped Kitchen
  • Double glazing Double glazing
  • City views City views
  • Chill out area Chill out area
  • Built-in wardrobes Built-in wardrobes
  • Air conditioning Air conditioning
Nearby Services
Schools Nearby schools
supermarket nearby supermarkets
hospitals nearby hospitals
transit station nearby transport
property-map-placeholder